Architecture - Design
About

Architect based in Bahrain. The multiple experiences I had during my studies and career shaped me and my design ideology from initiatives and voluntary contribution to multiple local and international participation in design, culture, research, and documentation.
Feel free to contact me!Manama, Bahrain
+973 38408666
[email protected]
P.O. Box 2945 Manama, Bahrain
Selected Works
ARCHITECTURE VISUALIZATION
Al-Dar
Sharifa Kanoo Art Center
Location; Muharraq, Bahrain
Type; Art Center / Competition
Area: 2400m2
Year: 2024
Artwork by: Noor Fardan @its.noor72Between local art practices and movements is located Sharifa art center project in Al Busaiteen next to Al Muharraq. The site challenges the cultural nature of creating an art center. the main question of the project is how to create an art center that reflects, respond, and respect its culture and context yet be a hub that gathers and foster the talent of artist and their crafts?Al-Dar is a Bahraini art center born from the lost conditions of the Bahraini architecture. The art center main focus is to create a space that centralize the artist yet provide individuality to their ideas and practices. Al-Dar focuses to humanize the enrich the experience of the creative field by providing a space that is born from the local practices and distribution of a third space in the contemporary need. It utilized the use of local materials and local architecture by re-utilize the courtyards, central spaces, pocket of spaces, negative spaces, green spaces, desert spaces, and adaptive spaces. Al-Dar art center does not try to get the focal point of the area but, it tries to enrich its context by emerging itself within the dense Muharraq city.
SDME 2021
Solar Decathlon Middle East 2021 - Go Smart team
3rd place winners
Location; Dubai, UAE - Bahrain
Type; Residential / Competition
Area: 400m2
Year; 2021
Team of 50+ students, instructors, consultants
My Role: site operation co-officer, first aid and firefighter, on-site construction, and a PR member
SDME 2021 (Solar Decathlon Middle East) is a student-based competition as part of Dubai Expo 2020 aiming to allow students to design, built, and operate a Net Zero homes accustomed to middle eastern climate and culture values to envision a smart green future.
The competition had 4 phases, the designing and planning phase in Bahrain (March-July), the construction phase in Bahrain (August-October), 14 days construction phase in Dubai (October-November), and 10 days of competition (November) of house monitoring and juries' presentation. The competition included 10 different contests that tests the reliability and functionality of our net-zero house.
Our team won 3rd place in the competition among 8 other awards in different judging criteria including:
- 3rd Place Winners of SDME 2021
- 1st Place Winners of Creative Solutions Contest
- 2nd Place Winners of Communications Contest
- 2nd Place Winners of Energy Management Contest
- 2nd Place Winners of Comfort Condition Contest
- 2nd Place Winners of Mobility Contest
- Winners of People's Choice Award
- Appreciation in BIPV
- Appreciation in Sustainability
CHILDREN'S HOUSE
KAIRA LOORO 2022 INTERNATIONAL COMPETITION
Location: Baghere, Senegal
Type: Recreation
Area: 250m2
Year: 2022The premise of the children house is to foster a space where children can be looked at, cared, loved, and acknowledged. The architecture of the space is maintained to make children feels alike their homes and creates a second inhabitance for children to allocate themselves with the architecture. The playful of the space is altered by the flexibility that the architecture provides. Experiences of time and sounds are underlined by the introduction of the light, water, and breeze of air. Recessed entrance and connective alleyways allow the space to breath and expand beyond its actual limits. . The vibrant Senegalese sun sneaks in intense yet thin through the courtyards, little wall openings, and bamboo panels shedding lights and life in various areas and parts of the house that creates sacred and lively architecture.
Project Team:
Alawi Alsari
Hussain Mohsiny
Melad ALfulaij
Mohammed Alwahoush
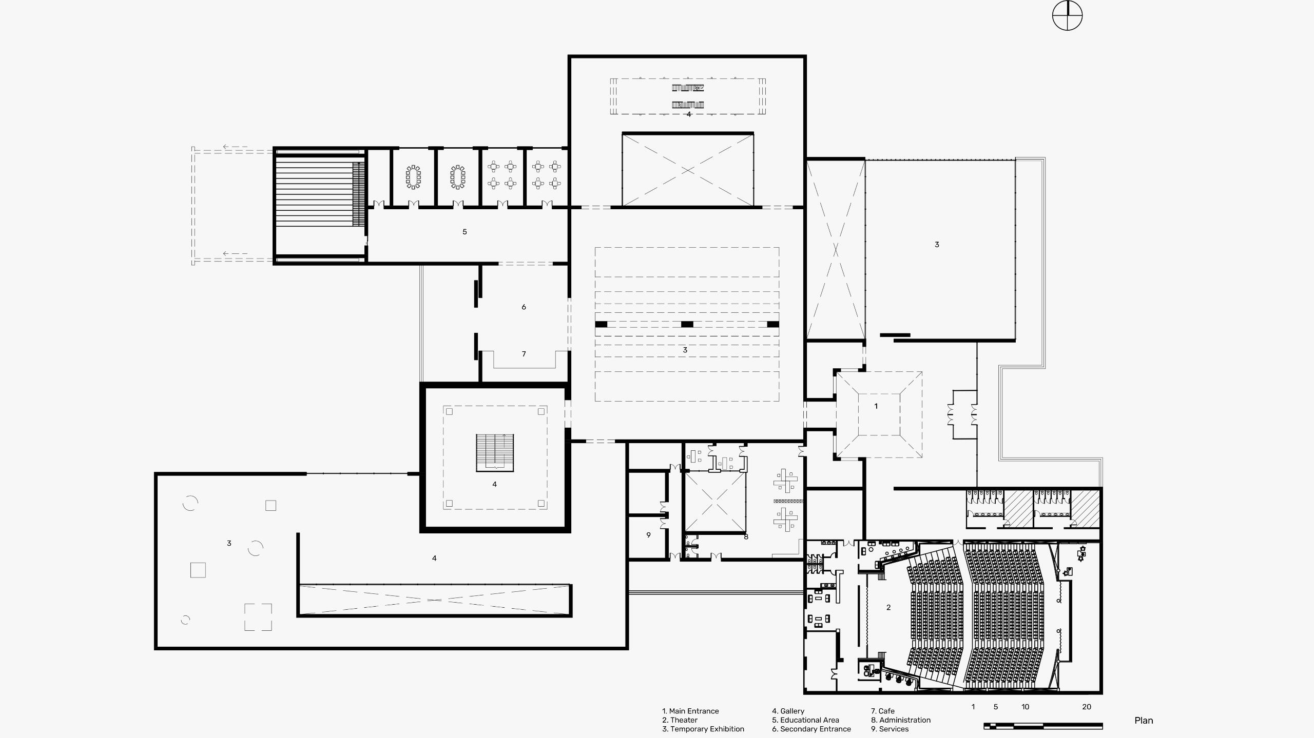
MUSEUME OF UNITY
Location: Seef, Bahrain
Type: Cultural
Area: 12000m2
Year: 2022Driven from the socio-political aspect of Seef area being a new mixed nationalities city located next to the rural villages (Daih, Sanabis, Karbabad), I was inspired from the reality of living and accepting each society to the other where it became normal to be a global citizen. However, the harsh reality shows clearly the differences between the urbanized Seef area and the rural villages that are only differentiated by a single Highway. Museum of Unity reflects the unity of our societies while embracing the differences when mixed societies meets. The project focuses on 3 main ideas that represents the differences of our society; strata of society, biculturalism, and expatriation, while being connected to a centralized hall that unifies these differences establishing a unity between the exhibition halls.
Bahrain Aquatic Center
Location: Hamad Town, Bahrain
Type: Leisure
Area: 10000m2
Year: 2021Inspired from the project location being in a desert area in Hamad Town near Zallaq desert, Bahrain Aquatic Center proposal distinguish its identity from the desert nature and reinhabit the desert from its desert architectural language in terms of materiality, texture, form and originality. As desert being an astonishing organic nature, the Bahrain Aquatic Center takes the form of pure shapes and volumes that respect the beauty and complexity of nature admitting and admiring that nature could not be invented by humans. The project aims into showcasing the aquatic zone and arena to the public which highlights its importance in relation to the other activities and spaces which become lower and less powerful visually as the project goes. The simplicity of the design were to co-reflect the beauty of desert in its finest and purist form away from unnecessary ornamentation.
Let's Collaborate!
Manama, Bahrain+973 38408666
[email protected]
P.O. Box 2945 Manama, Bahrain



















































